【其他文件】六安市叶集区姚李镇党委政府办公室关于印发《姚李镇改厕工作实施方案》的通知
姚办〔2025〕3号
六安市叶集区姚李镇党委政府办公室
关于印发《姚李镇改厕工作实施方案》的通知
各村、镇直各单位:
现将《姚李镇2025年改厕工作实施方案》印发给你们,请遵照执行。
六安市叶集区姚李镇党政办公室
2025年3月18日
姚李镇2025年度农村户厕改造实施方案
为加快改善农村人居环境整治,不断提高农村人口生活质量和环境质量,确保我镇改厕工作稳步有序推进,根据省市区相关文件要求,现结合实际,制订本实施方案,请遵照执行。
一、目标任务
本年度我镇计划完成239户无害化卫生厕所改造任务,其中三格式改厕139户,中心村纳管式改厕约100户。乡、村主次干道沿线农户带头改厕;所有行政村的村部、学校、卫生室等公共场所带头改厕;党员、干部、国家公职人员及其直系亲属带头改厕。在集中改造阶段,同步实施粪污治理。
1.持续推进户改厕项目改造及长效管护工作,确保2013年以来,各级财政支持的农村户用厕所改厕所达正常使用、群众满意及管护到位目标。
2.全面完成2025年各村上报的无害化卫生厕所的改造任务。
二、基本原则
1.以人为本,尊重民意。建立完善公众参与机制,保障群众的决策权、参与权和监督权,动员广大群众参与农村改厕工作。
2.政府引导,协同推进。建立政府统一部署、公共财政扶持、专业服务相结合的推进体制,实行镇、村、户三级联动,分级负责。
3.示范带动,整村实施。通过示范村、示范户的示范作用,引导群众主动改厕;以行政村为单位,整村组织实施农村改厕工作。
三、加强标准宣贯执行
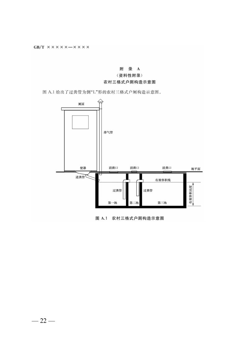
要严格按照《农村三格式户厕建设技术规范》《农村三格式户厕运行维护规范》《农村集中下水道户厕建设技术规范》3项国家标准执行农村改厕工作,严把农村改厕技术模式、产品质量、施工质量、竣工验收、维修服务、粪污处理等关键环节。要将标准主要内容向广大农民群众宣传,特别是已改户、在改户和有改厕需求的农户。
四、改厕对象、补助标准和实施主体
(一)改厕对象。农村户用无害化卫生厕所改造的重点是达不到卫生厕所标准的农村户用厕所。举家外出(1年以上)且书面征求意见不愿改厕的农户数、三年内有搬迁计划的农户以及空挂户和书面征求意见放弃改厕的农户可暂不列入改厕计划。
(二)资金来源。按照政府补助引导、群众投工投劳相结合的原则,多方筹集改厕资金,针对此次农村户厕改造区财政每户补助2200元(含省、市补助资金),超出每户2200元的,超出部分由镇级财政自筹资金兜底,由镇统一组织招标实施。以下情形不列入补助范围:一是不按规定标准建设;二是验收不合格的户厕。鼓励农户以自备砖、砂石、水泥建筑材料或以出工等形式参与改厕。
(三)实施主体。各村作为农村户厕改造的实施主体,负责将任务落实到农户,负责监督、施工、验收及农户改厕信息系统录入等工作。数量服从质量,任务服从时效,改一户、成一户、用一户。
五、实施步骤
(一)科学制定改厕计划。各村要综合考虑合理制定改厕工作实施方案,明确专人负责,做好农户对接、协调、宣传工作,按照优先入室、确保进院原则,积极稳妥有序推进户厕改造工作。
(二)合理选择改厕模式。各村要因地制宜,合理确定农村户用无害化卫生厕所改造模式。结合我镇实际,推广使用三格化粪池式厕所,农村集中下水道式厕所。
(三)严格执行改厕流程。各村要充分考虑农民长远需求,超前谋划,按照统一施工、统一验收的原则实施改厕工作。要充分尊重农民意愿,农民是乡村的主人,也是乡村振兴的主体。农村厕所是为农民而建,要坚持一切为了农民、一切依靠农民的导向,充分尊重农民意愿,在农民自愿的前提下推进改厕,不能替农民做主、搞强迫命令,暂时不愿改的可以缓一缓。要做好宣传发动,通过发放明白纸、入户讲解、实地参观等方式,充分调动农民参与改厕的积极性和主动性,做到农民知情、农民自愿、农民参与、农民满意。
(四)加强施工技术指导。镇改厕办负责对改厕工作进行培训指导,在工程开工前要对具体负责人员和施工人员进行改厕技术规范专业培训,保证管理和施工人员掌握技术,按规范施工。
(五)强化工程及产品质量监督管理。建立健全农村改厕工程及产品质量监督管理制度,镇改厕办及监理要加强改厕施工现场质量巡查与指导监督。三格式化粪池必须由区市场监督管理局进行抽检,抽检合格后方可使用,改厕施工必须由有资质的施工队伍承担,施工人员需经过培训。落实工程质量和安全责任制,施工队伍要承担保修和返修责任,确保工程质量符合施工及验收标准。
六、加强领导
各村要成立村级改厕工作领导小组,驻村点长、村书记及其他村干为村级改厕责任人,负责监督推进户厕改造工作,同时明确各村改厕具体经办人员,压实各村小网格责任,实行点长及村书记负责制。
七、工作职责
1.驻村点长、改厕办联系人为各村改厕工作的网格责任人,具体负责和参与指导联系村改厕工作的问题摸排和整改后的验收、参与联系村新建厕所改造及验收;各村支部书记是村级改厕工作的第一责任人,全程参与。村级改厕具体经办人负责本村的软件资料整理和相关数据的上报汇总、录入工作;改厕办联系人及改厕项目监理负责指导各村改厕培训及施工现场技术标准把关。改厕施工实行首厕验收制度。
2.镇改厕办李伟、韩健负责改厕办日常工作,具体负责镇村软件资料收集、整理,指导相关数据的汇总上报工作。
八、督查调度
实行周调度制度。镇改厕办、督考办将对各村改厕摸排、整改及新建工作进行督查,对改厕摸排不实、整改工作不到位、新建改厕进度较慢、质量把关不严、施工环境差的村,在全镇予以通报批评,各村片长、副片长、网格长负责督促整改。
附件:1.姚李镇改厕工作联系责任及到村任务一览表
2.六安市叶集区农村改厕项目过程管控表
3.六安市叶集区农村改厕项目验收表
4.六安市叶集区农村无害化卫生户厕移交书
5.农村三格式户厕建设技术规范
姚办[2025]3号(六安市叶集区姚李镇党委政府办公室关于印发《姚李镇改厕工作实施方案》的通知).pdf

皖公网安备 34152602000010号